物件詳細

四条烏丸アーバンライフビル
最寄駅 地下鉄烏丸線四条駅2分
所在地 京都市下京区綾小路通烏丸東入竹屋之町252-1
外観写真 四条烏丸アーバンライフビル
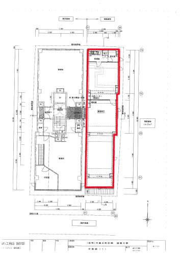
平面図 四条烏丸アーバンライフビル
賃貸条件
階数 2 階 面積 34坪
賃料 420,000円 (税抜) 共益費 74,000円 (税抜)
保証金/敷金 1,260,000 円 礼金 1,386,000 円
竣工年月 1990年11月
設備
エレベーター あり (1基) 空調 個別
トイレ 共用
3階のみ
キッチン 専用
機械警備 あり
OAフロア 対応
光ケーブル あり
駐車場 なし

四条烏丸アーバンライフビル
の業種・特徴

■特記事項■
引渡状態: 事務所内装
業種制限: 事務所
工事指定: なし
損害保険: 指定あり
賃貸保証: 指定あり
管理会社: 貸主
その他1:  
その他2:  
 
■物件特徴■
【綾小路通面ス】 オートロックシステム、増築区画、トイレは3階のみ(共用)  ※面積は設計図面の概算面積
 
 

※賃料・共益費・礼金等には別途消費税がかかります。

※お問い合わせ頂いた際、決定等の場合はご容赦願います。

※業種及び内容等によりお断りさせて頂く場合がございます。

※物件情報を承諾無く第三者へ情報提供及び漏洩することは一切お断りしています。

※当資料の表示価格は小数点第3位以下は切り捨てになります。

※仲介手数料については成約賃料の一ヶ月分(税別)になります。

この物件のおすすめ近隣物件
  • 四条平野ビル

    四条平野ビル

  • 四条烏丸スタービル

    四条烏丸スタービル

  • 四条高倉大西ビル

    四条高倉大西ビル

  • 京都四条烏丸ビル

    京都四条烏丸ビル

  • AYA四条烏丸ビル

    AYA四条烏丸ビル

  • MJP烏丸ビル

    MJP烏丸ビル

  • 第三田源ビル

    第三田源ビル

  • 京都証券ビル

    京都証券ビル

  • オフィス-ワン四条烏丸

    オフィス-ワン四条烏丸

  • 第八長谷ビル

    第八長谷ビル